【 亀岡・千代川町 】建売:小林前田3650万円
※物件掲載内容と現況に相違がある場合は現況を優先と致します
| 物件番号 | 第R07確認建築PLN橿本0382号 | ||
|---|---|---|---|
| 所在地 | 京都府亀岡市千代川町小林前田44-4 | ||
| 交通 | JR嵯峨野線 千代川駅 徒歩約16分 JR嵯峨野線 並河駅 徒歩約16分 |
||
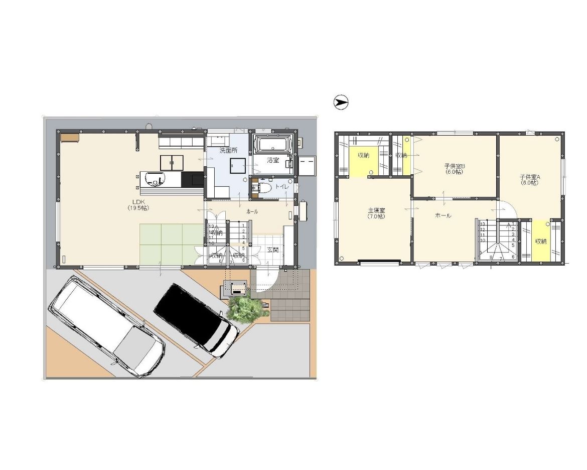
| 土地面積 | 116.69㎡ | 地目 | 宅地 |
| 建ぺい率 | 60% | 用途地域 | 第一種住居地域 |
| 容積率 | 200% | 都市計画 | |
| 土地面積計測方式 | 地勢 | 平坦 | |
| 総区画数 | 引渡/入居時期 | 相談 | |
| 道路 | 前面道路6m | 取引態様 | 仲介 |
| 私道負担 | なし | 売主 | 株式会社アサヒ |
| 駐車場 | 有 | 仲介 | 株式会社朝日ホーム |
| 電気/ガス/水道 | 電気:関西電力 / ガス:プロパンガス / 水道:亀岡市営 / 下水:公共下水 | ||
| 設備・条件 |
|
||
| 周辺環境 | フレッシュバザール 徒歩約8分 キリン堂亀岡千代川店 徒歩約11分 亀岡千代川郵便局 徒歩約11分 京都銀行千代川支店 徒歩約18分 | ||
おすすめポイント
イシンホームの性能がつまった◆省エネ分譲住宅◆
◆ 長期優良住宅 ◆
◆ 耐震等級3 取得 ◆
◎地震ブレーキ
地震に耐える「耐震工法」&揺れを抑える「減震ブレーキ」を採用したW地震対策で、ご家族の安全を守ります。
◎カップボード・照明付き
◎EV充電コンセント付
災害時の移動も安心です。
◎24時間 熱交換換気システム付
ジメジメした夏もカラッと快適。
周辺施設情報
![]()
|
![]()
|
![]()
|
![]()
|
![]()
|
アクセス
CONTACT









